Palazzo Manni
Nel centro storico di Pistoia
Uffici
A pochi passi da Piazza del Duomo, nel cuore del centro storico di Pistoia, proponiamo in vendita due unità direzionali all’interno di un palazzo storico di pregio. Dotate di accesso indipendente da Via F. Pacini e di una corte interna esclusiva, adibita a parcheggio privato (fino a 30 posti auto), le soluzioni offrono autonomia, riservatezza e rappresentatività in un contesto centrale e dinamico.
SUPERFICIE TOTALE
1.730 mq
LIVELLI
6 piani
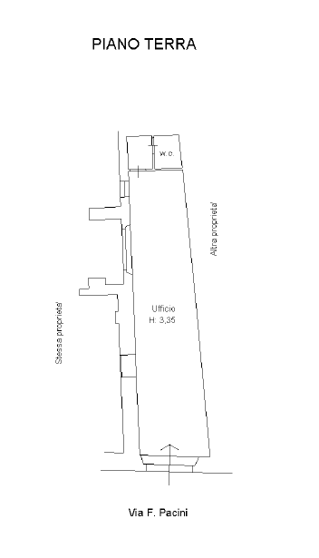
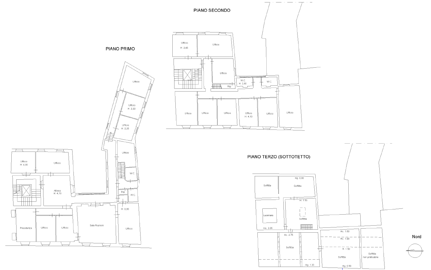
Planimetrie
Unità principale - 1.660 mq circa
Piano Interrato: due cantine ideali come deposito privato
Piano terra: ingresso da portico, ampi uffici luminosi, tre dei quali con accesso diretto alla corte esterna, sala riunioni principale, archivi e servizi
Piano Ammezzato: sala riunioni, archivio dedicato e servizi
Piano primo e secondo: locali direzionali con servizi
Piano terzo: soffitta praticabile
Unità secondaria - 71 mq circa
Piano terra: costituito da un unico locale open space e servizi
Localizzazione
L’edificio, distante 50 metri dalla piazza principale, è situato in una posizione strategica, senza il vincolo della ZTL. A pochi passi da tutte le comodità di zona, risulta facilmente accessibile anche tramite mezzi di trasporto pubblico.
Una posizione che unisce visibilità, accessibilità e praticità operativa.
Contattaci
info.re@ryze.eu
+39 02 500 31 999
Via Ombrone 2/G
00198 Roma
o compila il form per ricevere maggiori informazioni e fissare un appuntamento.
Siamo la società di intermediazione immobiliare del Gruppo RYZE specializzata nella compravendita e locazione di immobili con un’esperienza consolidata nel settore immobiliare e una attenzione particolare alle diverse necessità dei Clienti, offre supporto nella scelta e nell’acquisto.

